
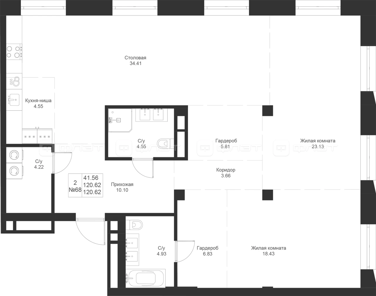
2-комнатная квартира, №68
Респ Татарстан, г Казань, ул Шуртыгина, 44 стр, Советский
- 120.62/41.56/4.55 м²
- 3/9 этаж
- Квартира
- Мифы
- Ак Барс Дом
- Бизнес
- 3 кв. 2026г.
- Монолит-кирпич
- 3.15 м
- 2
- 4.55 м²
- 4.93 м²
49 816 060 ₽

Респ Татарстан, г Казань, ул Шуртыгина, 44 стр, Советский